Graduate Counseling Little Rock Location Change
Starting in January, our Little Rock Graduate Counseling Program will transition to a new location at Mosaic Church at 6221 Colonel Glenn Rd A, Little Rock, AR 72204.
This strategic move will provide our students with numerous opportunities to work with the public, gain experience in integrative care and volunteerism and bring potential for new collaborations with service providers.
We’re excited to see how this enriches your educational experience while helping JBU be a good steward of the resources you invest in your education.
Important Details
- First classes at the new location: Spring A semester (January 13, 2025)
- During the spring semester, JBU will hire clinical staff and work toward reopening the Community Counseling Clinic for practicum students in the summer of 2025.
- Our program quality and academic standards remain unchanged
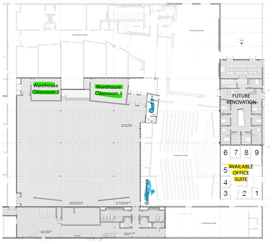
The below floor plan might help you orient yourself to the new space. Classroom space is indicated in green. The conference rooms (blue) will provide faculty and student meeting spaces. The office suite (yellow) will be counseling rooms for practicum students and offices for our faculty members and the clinic director.
If you have any questions, please don’t hesitate to contact Chris Hull (chull@jbu.edu).


